Handel-Lager-Service: Gewerbefläche in Ziesar
Exposé: Handel-Lager-Service: Gewerbefläche in Ziesar
PLZ /Ort:
Kaltmiete
Gesamtfläche
Gesamtfläche
Flächen
Nutzfläche:
700,00 m²
Gesamtfläche:
700,00 m²
Teilbar ab:
400,00 m²
Preise
Kaltmiete:
1.997,00 €
Nebenkosten:
500,00 €
Kaution:
7491.00
Sonstiges
Ihre Objektnr.:
330007778
Objekttyp:
Einzelhandelsladen
Stellplatz-Art:
Freiplatz
Stellplätze (Anz.):
30
Zimmer:
6
Seperate WC:
3
Baujahr:
1976
Energiepass
Ausstattung
Rampe
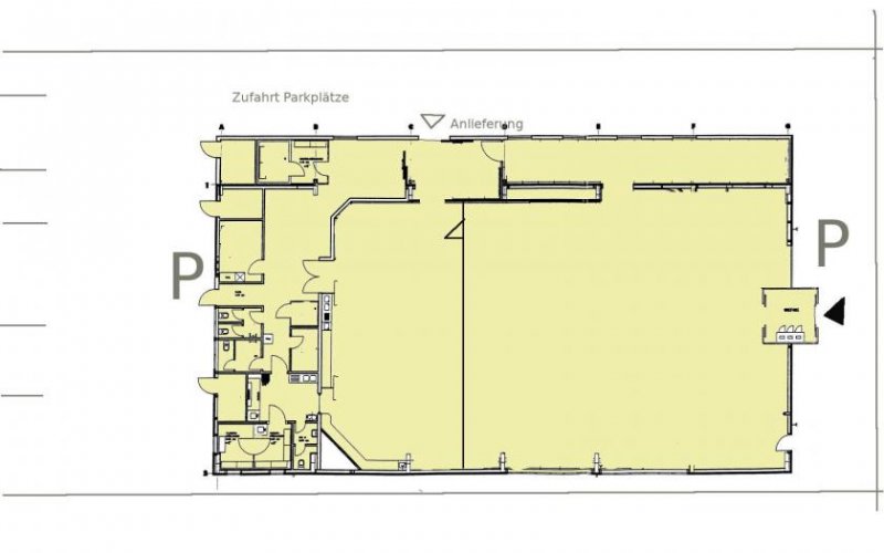
Objektbeschreibung
Freistehendes Gebäude mit Parkflächen straßenseitig und rückseitig auf Hof. Im vorderen Bereich ein Verkaufs-/Serviceraum, dazu 2 Lager- und weitere Serviceflächen. Der säulenfreie Verkaufs-/Serviceraum ist erweiterbar. Eingangsbereich über elektrische Schiebetüren mit Luftschleuse. Die ehemalige Anlieferung erfolgte über einen Rampe mit Rolltor.
Die Elektroanlage wurde im Zuge der letzten Modernisierung erneuert.
Die Immobilie wird leer und besenrein vermietet. Änderungen im Innenbereich kann der Mieter durchführen.
Sofern der zukünftige Mieter eine Beheizung der Immobilie wünscht, ist dies möglich. Der Mietpreis würde sich dazu um 1 €/m² erhöhen. Heizkosten fallen dann zusätzlich an.
Jegliche mischgebietstypische Nutzungen sind möglich. Hinweis zum Energieausweis: Der Energieausweis liegt noch nicht vor. Mindestmietzeit: 3.0 Jahre . Übergabe/Verfügbarkeit ab: nach Vereinbarung. Informativ: Gesamtmiete inkl. Nebenkosten 2497,00 €. Dieses Angebot wird bei uns betreut von Herr Joachim Westphal, Tel. 0178/1356037 und Herr Wolfgang Kühne, Tel. 0178/1356037.
Ausstattung
Besondere Ausstattungsmerkmale: Andienung über Rampe
Sonstige Angaben
Alle INFORMATIONEN ZU DIESEM ANGEBOT, mehr Fotos sowie Pläne/Grundriss bekommen Sie über das Expose auf unserer Internetseite. Die vollständige ANSCHRIFT können Sie ebenfalls über das Kontaktfeld im Expose auf unserer Internetseite anfordern. Hier können Sie auch eine Video-Besichtigung machen. Verwenden Sie dazu diesen Link: https://KuehneGmbH.de/330007778 .
Auf unserer Webseite können Sie sich auch über weitere Angebote informieren und Ihre Suchwünsche vormerken, bzw. einen Suchauftrag erstellen.
Wenn Sie Fragen haben, rufen Sie uns einfach an. Wir beraten Sie gerne zu Ihrer Immobiliensuche und versuchen, Ihnen zu helfen.
Übrigens, wenn Sie eine vergleichbare Immobilie selbst zu vermieten oder zu verkaufen haben, sprechen Sie mit uns. Als erfahrene Makler beraten wir Sie gerne und erläutern Ihnen unverbindlich, welchen Mehrwert wir Ihnen bieten können.
Gewerbe Immobilien Ziesar
HomeBooster hat dieses Objekt zum mieten und kaufen unter Ziesar eingetragen. Das Bundesland dieses Onlineinserats ist Brandenburg.
Weitere Immobilien zum mieten und kaufen kommen von Dipl.Ing. Kühne GmbH Ansprechpartner Wolfgang Kühne, Brandensteinweg 6 in 13595 Berlin.
Synonyme zur Suche Ziesar Gewerbe Immobilien:
Ziesar Immobilien für Unternehmen, Gewerbeimmobilien mieten Ziesar, Industrie Immobilien Ziesar







