Gewerbegrundstück mit Lager und Nebengelass in Ortslage
Exposé: Gewerbegrundstück mit Lager und Nebengelass in Ortslage
PLZ /Ort:
Kaufpreis
Gesamtfläche
Gesamtfläche
Flächen
Nutzfläche:
540,00 m²
Gesamtfläche:
540,00 m²
Grundstücksfläche:
2.027,00 m²
Preise
Kaufpreis:
170.000,00 €
Sonstiges
Ihre Objektnr.:
330007837
Objekttyp:
Lager
Stellplatz-Art:
Freiplatz
Stellplätze (Anz.):
5
Zimmer:
4
Seperate WC:
1
Baujahr:
1980
Energiepass
Ausstattung
barrierefrei
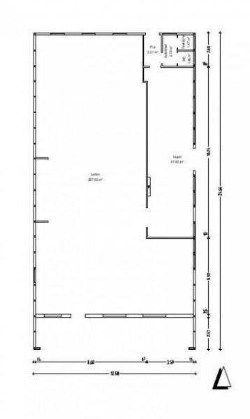
Objektbeschreibung
Zum Verkauf steht ein gesichertes Gewerbegrundstück in Ortslage mit kleinerer beheizbarer Markthalle und Sozialbereich, großer Garage und Freilager in gutem einfachen Zustand. Ein Vorplatz sowie die Grundstückszufahrt ermöglichen parken auf eigenem Gelände.
Die vorhandene PV-Anlage aus 2013 ist mit 30000 € als Abstand zusätzlich zum Angebotspreis zu berücksichtigen. Der Gesamtpreis für dieses Angebot beträgt also 200.000,- €. Für dieses Angebot sind Übernahmekosten in Höhe von 30000.00 EUR zu zahlen. Übergabe/Verfügbarkeit ab: nach Vereinbarung. Informativ: Kaufpreis 170000,00 €. Provisionshinweis: 7,14 % des Kaufpreis vom Käufer. Dieses Angebot wird bei uns betreut von Herr Joachim Westphal, Tel. 0178/1356037.
Ausstattung
Besondere Ausstattungsmerkmale: barrierefreier Zugang
Sonstige Angaben
Alle INFORMATIONEN ZU DIESEM ANGEBOT, mehr Fotos sowie Pläne/Grundriss bekommen Sie über das Expose auf unserer Internetseite. Die vollständige ANSCHRIFT können Sie ebenfalls über das Kontaktfeld im Expose auf unserer Internetseite anfordern. Verwenden Sie dazu diesen Link: https://KuehneGmbH.de/330007837 .
Auf unserer Webseite können Sie sich auch über weitere Angebote informieren und Ihre Suchwünsche vormerken, bzw. einen Suchauftrag erstellen.
Wenn Sie Fragen haben, rufen Sie uns einfach an. Wir beraten Sie gerne zu Ihrer Immobiliensuche und versuchen, Ihnen zu helfen.
Übrigens, wenn Sie eine vergleichbare Immobilie selbst zu vermieten oder zu verkaufen haben, sprechen Sie mit uns. Als erfahrene Makler beraten wir Sie gerne und erläutern Ihnen unverbindlich, welchen Mehrwert wir Ihnen bieten können.
Gewerbe Immobilien Tucheim
Im HomeBooster Verzeichnis findet sich diese Immobilie unter Tucheim. Am Anfang suchen User zuerst auf der Seite Sachsen-Anhalt.
Weitere Immobilien zum mieten und kaufen kommen von Dipl.Ing. Kühne GmbH Ansprechpartner Wolfgang Kühne, Brandensteinweg 6 in 13595 Berlin.
Synonyme zur Suche Tucheim Gewerbe Immobilien:
Tucheim Immobilien für Unternehmen, Gewerbeimmobilien mieten Tucheim, Industrie Immobilien Tucheim







